Продаётся 4-х комн.благ. дом с газ. отопл. по адресу: г. Тюкалинск, пер. Школьный.
В избранное
Цена:
8 000 000 руб.
Контакт:
89509510661; 89136454550
Добавлено:
27.02.2026 г. в 16 ч. 33 мин.
Создано:
Описание
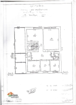
Продаётся 4-х комн.благ. дом с газовым отоплением (а так же электрическим и твёрдотопливным) по адресу: г. Тюкалинск, пер. Школьный. Общ. пл. 104.4 кв.м. Зем. уч. 10.45 сот. в собств-ти (межевание). Окна ПВХ, баня, гараж, беседка, мангальная зона, подвал (155 кв.м. высота 2.5 м.), хоз. постройки с возможностью содержания животных. Цена - 8 000 000 р.
Особенности
Объект
Дом
Количество комнат
4
Площадь (кв.м)
104.4
Этаж
1
Этажность
1
Материал постройки
кирпичный
Благоустройство
вода, канализация, газ, санузел
Год постройки
1992
Дополнительные параметры
баня, гараж
Земельный участок в сотках
10.45
Расположение
Тюкалинск, Тюкалинский район
г. Тюкалинск, пер. Школьный
г. Тюкалинск, пер. Школьный
Поделиться объявлением:

Комментарии
Добавить комментарий